Rumah dijual dengan 1 kamar tidur di Senden, Jawa Tengah
Klaten, Jawa Tengah
RP 190,000,000
(RP 6,333,333 / m2)
-
Security
-
Car park
-
Garden
-
Children's area
-
Panoramic view
-
Library
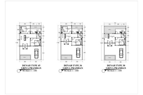
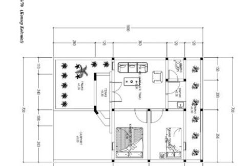
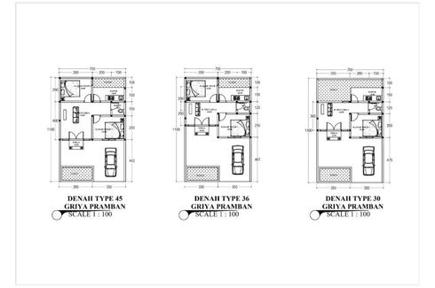
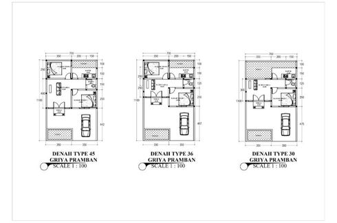
Cari Rumah yang pas di kantong dulu aja, biar enteng mikirin yang lain, Udah deh, yakin sama SHINDID, kalo mau tanya-tanya dulu, boleh lah langsung Telpon yaAlamat : Senden, Ngawen, Klaten.Harga : Rp. 190.000.000Legalitas SHM-P + IMBSiap KPRSpesifikasiLuas tanah mulai : 70 m2Type bangunan : 30 m2• Kawasan Pengembangan Kota Klaten• Dekat Pasar• 800 meter SMK N 2 Klaten• 1,5KM Simpang Lima BramenInfo...