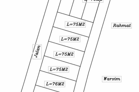
‹ › 1/15 Rumah dijual dengan 3 kamar tidur di Jati Mekar, Jawa Barat Bekasi, Jawa Barat RP 935,000,000 (RP 11,000,000 / m2) 3 2 85 m2 Rumah Rumah Cluster Cantik Strategis Di Kawasan Jatiluhur Jatiasih, BekasiAvailable 10 UnitReady Stock 2 UnitSpek :- LT. 102 m2- LB. 85 m2- Bangunan 2 Lantai- SHM/IMB/PBB Lengkap- KT. 3- KM. 2- Listrik 2200 W- Carport 2 mobil - Air Jetpump- Halaman belakang luas- Harga : 935 Juta- Booking Fee 5 Juta- DP 5 %- Cash/KPRSelling point :- Row jalan 8 meter- Dekat kelurahan, puskesmas, sekolah- Dekat minimarket... Call
‹ › 1/11 Rumah dijual dengan 5 kamar tidur di Bangka, Jakarta Jakarta Selatan, Jakarta RP 33 Milyar (RP 43,421,053 / m2) 5 5 760 m2 Rumah Car park Children's area Electricity Water Brandnew Luxury House Strategis Di Kemang Dalam, Jakarta SelatanSpek :- LT. 517 m2- LB. 760 m2- Bangunan 3 Lantai- SHM + IMB- KT. 5 + 2- KM. 5 + 1- Powder Room- Swimming Pool- Taman Depan Belakang- Garasi 6 + Carport 6 mobil- Harga : 33 M (Nego)More Info :WA : 0812 9368 ----#rumahkemangdijual#rumahmurahkemangdalam#rumahkemangjakarta#rumahmurahjakartaselatan#rumahmurahkemangjakarta(rh) Call
‹ › 1/7 Rumah dijual dengan 8 kamar tidur di Kebayoran Baru, Jakarta Jakarta Selatan, Jakarta RP 27 Milyar (RP 117,391,304 / m2) 8 3 230 m2 Rumah Rumah Mewah Murah Bawah NJOP Prime Area, Kebayoran Baru, Jakarta Selatan* Lokasi Bisnis/Komersil AreaSpek :- Luas Tanah : 620 m2- Luas Bangunan 230 m2- Bangunan 1 Lantai- Renovasi terakhir 2015- SHM + IMB- KT : 8- KM : 3- Dapur - Mushola- Carport 9 mobil- Bentuk tanah kotak- Dimensi : 21,7 x 32 mtr- NJOP 2025 : 30,2 M- Harga Jual 27 M (Nego Tipis)More Info WA : 0812 9368 ----#rumahmurahkebayoranbaru#rumahkebayorandijual#rumahmurahjakarta#rumahjakartaselatandijual#rumahkebayoranbarujakarta(dn/bam) Call
‹ › 1/7 Rumah dijual dengan 4 kamar tidur di Bangka, Jakarta Jakarta Selatan, Jakarta RP 16.5 Milyar (RP 27,500,000 / m2) 4 4 600 m2 Rumah Rumah Bagus Murah Siap Huni Strategis Di Kawasan Kemang, Jakarta SelatanSpek :- LT. 902 m2- LB. 600 m2- Bangunan 2 Lantai- SHM/IMB/PBB- KT. 4- KM. 4- Swimming Pool- Garasi/Carport 5 Mobil- Nilai NJOP 2024 : 15,3 M- Harga JUAL : 16.5 M (Nego)- Cash/KPRMore InfoWA : 0812 9368 ----#rumahmurahkemang#rumahkemangdijual#rumahkemangjakartaselatan#rumahmurahjakarta#rumahminimaliskemang(rh) Call
‹ › 1/11 Rumah dijual dengan 4 kamar tidur di Pesanggrahan, Jakarta Jakarta Selatan, Jakarta RP 4.95 Milyar (RP 12,823,834 / m2) 4 4 386 m2 Rumah Rumah 2 Lantai Hoek Bagus Strategis Di Petukangan Selatan, Pesanggrahan, Jakarta SelatanSpek :- LT. 469 m2- LB. 386 m2- Bangunan 2 Lantai- Posisi Hoek- SHM + SHGB + IMB- KT. 4 + 1- KM. 4 + 1- Harga : 4,950 M (Nego)Selling Point :- Bebas Banjir- Dekat Tol PesanggrahanMore InfoWA : 0812 9368 ----#rumahmurahjakartaselatan#rumahpesanggrahandijual#rumahpetukanganselatan#rumahmurahjakarta#rumahmurahpesanggrahan(dn) Call
‹ › 1/15 Rumah dijual dengan 5 kamar tidur di Bangka, Jakarta Jakarta Selatan, Jakarta RP 23.5 Milyar (RP 47,000,000 / m2) 5 5 500 m2 Rumah Dijual Cepat Rumah Bagus Terawat Siap Huni Strategis Di Kemang Selatan, Jakarta SelatanSpesifikasi- Luas Tanah : 569 m2 - Luas Bangunan : 500 m2- Bangunan 2 Lantai - SHM/IMB/PBB- Hadap Barat- Kamar Tidur : 5 + 2- Kamar Mandi : 5 + 1- Kolam Renang - Gudang + Dapur Bersih/Kotor- Listrik : 23.000 W- Taman Depan Dan Belakang - Garasi/Carport : 5 Mobil- Harga : 23,5 M (Nego)Selling Point :* Lokasi Sangat... Call
‹ › 1/12 Rumah dijual dengan 3 kamar tidur di Ciputat, Banten Tangerang Selatan, Banten RP 1.6 Milyar (RP 20,512,821 / m2) 3 3 78 m2 Rumah Rumah Mewah Cantik Elegan Strategis Area Bintaro Tangerang SelatanPromo : Free PPN & BPHTBSpek :- LT. 60 - 84 m2- LB. 78 - 103 m2- SHGB + IMB- KT. 3 - KM. 3- Listrik : 2200 W- Carport : 1 - 2 Mobil- Harga : 1,6 M - 2,2 M- Rumah Indent- Cash/KPR Fasilitas Perumahan :- Row jalan lebar 7 meter- Club House - Taman bermain anak- Minimarket - Dekat sekolah Internasional- Dekat Pintu Tol - Dekat Stasiun KRL-... Call
‹ › 1/10 Rumah dijual dengan 4 kamar tidur di Cilandak Barat, Jakarta Jakarta Selatan, Jakarta RP 11.5 Milyar (RP 38,333,333 / m2) 4 3 300 m2 Rumah Rumah Terawat Hitung Tanah Strategis Di Cilandak, Jakarta SelatanSpek :- LT. 509 m2- LB. 300 m2- Dimensi : 15 x 34 meter- Bangunan 1,5 Lantai- SHM/IMB/PBB- KT. 4- KM. 3- Carport 5 mobil- Harga Hitung Tanah : 11,5 M (Nego) (rh) Call
‹ › 1/6 Rumah dijual dengan 5 kamar tidur di Bintaro, Jakarta Jakarta Selatan, Jakarta RP 60 Milyar 5 5 4,000 m2 Rumah Rumah Elegan Mewah Strategis Di Kawasan Bintaro Jakarta SelatanSpek :- Luas Tanah : 4.000 m2- Luas Bangunan Induk : 600 m2- Luas Lantai 1 dan 2 : 1.200 m2- Legalitas : SHM + IMB- Ruang Tamu Kapasitas 100 orang- Ruang Makan Kapasitas 100 orang- Kamar Tidur : 5 + 3- Kamar Mandi : 5 + 3- Ruang Keluarga, Ruang Kerja, Mushola- Teras depan dan belakang- Pavilion 6 x 7,5 mtr- Garasi + Carport- Basement uk.... Call
‹ › 1/8 Rumah dijual dengan 10 kamar tidur di Kebayoran Baru, Jakarta Jakarta Selatan, Jakarta RP 85 Milyar (RP 94,444,444 / m2) 10 6 900 m2 Rumah Rumah Mewah Strategis Di Kawasan Kebayoran Baru, Jakarta Selatan Spek :- LT. 1026 m2- LB. 900 m2- Bangunan 2 Lantai- SHM + IMB- KT. 10- KM. 6 - Swimming Pool- Garasi 3 Mobil- Carport 10 Mobil- Harga : 85 M (Nego)More Info WA : 0812 9368 ----#rumahkebayoranbarudijual#rumahmurahkebayoran#rumahmurahjakarta#rumahmewahkebayoran#rumahkebayorandijual(rh) Call
‹ › 1/12 Rumah dijual dengan 5 kamar tidur di Jagakarsa, Jakarta Jakarta Selatan, Jakarta RP 16 Milyar (RP 16,000,000 / m2) 5 5 1,000 m2 Rumah Rumah Luas Strategis Pinggir Jalan Raya Di Jagakarsa, Jakarta SelatanSpek :- LT. 1.230 m2- LB. 1.000 m2- SHM + IMB- KT. 5 + 1- KM. 5 + 1- Taman depan dan samping - Harga : 16 M (Nego)(rh) Call
‹ › 1/11 Komersial dijual dengan di Kebon Sirih, Jakarta Jakarta Pusat, Jakarta RP 320 Milyar (RP 46,242,775 / m2) 20 6,920 m2 Komersial Dijual Gedung Mewah Strategis Di Kebon Sirih, Jakarta PusatSpek :- LT. 1.911 m2- LB. 6.920 m2- Bangunan 10 Lantai + 1 Basement- Legalitas : SHGB + IMB- Parkir : 40 mobil + 100 motor- Elevator 3 unit (2 passenger + 1 large freight)- AC Central Daikin- Fire Alarm System- 750 KVA Generator- Open space layout- Kamar mandi tiap lantai - IP phone line ready- High ceiling lobby- Meeting/venue floor- Harga... Call
‹ › 1/15 Rumah dijual dengan 3 kamar tidur di Jati Rahayu, Jawa Barat Bekasi, Jawa Barat RP 1.375 Milyar (RP 13,750,000 / m2) 3 3 100 m2 Rumah Rumah Dijual dari 100sqm, yang terdiri dari 3 kamar tidur dan 3 kamar mandi berlokasi di Jati Rahayu, Bekasi. Call
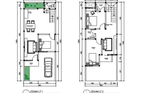
‹ › 1/9 Rumah dijual dengan 3 kamar tidur di Jatisampurna, Jawa Barat Bekasi, Jawa Barat RP 856,000,000 (RP 12,228,571 / m2) 3 2 70 m2 Rumah Rumah Cluster Baru Minimalis Modern Di Kawasan Kranggan Jatisampurna BekasiAvailable : 23 UnitRumah Indent : 5 BulanPromo Bulan Ini :* Cash Bertahap 6 bulan* Cash Keras dan KPR* Free Canopy* Free biaya BPHTB, AJB, BN* Free mesin air dan toren* Free smartdorlock Spesifikasi :+ Luas tanah : 57 - 65 m2+ Luas bangunan : 70 m2+ Kamar tidur : 3+ Kamar mandi : 2+ Listrik : 2200 Watt+ Carport : 2 mobil+ Sertifikat... Call
Baru ‹ › 1/14 Rumah dijual dengan 9 kamar tidur di Kebayoran Baru, Jakarta Jakarta Selatan, Jakarta RP 27 Milyar 9 4 469 m2 Rumah Rumah Modern Huk Cocok Untuk Kantor Dekat Senayan City Jakarta Selatan Spek :- Luas Tanah : 469 m2- Luas Bangunan : 301 m2- Bangunan 2 Lantai- Hadap Timur/Facade + Selatan (Huk)- Legalitas SHM + IMB- Kamar Tidur : 9 + 2- Kamar Mandi 4 + 1- Listrik : 7.700 W- Garasi 2 + Carport 9 - Harga : 27 M (Nego)Fasilitas Rumah :* Halaman Depan, Samping* Balcony Luas* Teras Depan, Samping* Ruang Tamu* Ruang Keluarga*... Call
‹ › 1/13 Rumah dijual dengan 5 kamar tidur di Kebayoran Lama Selatan, Jakarta Jakarta Selatan, Jakarta RP 79 Milyar (RP 112,857,143 / m2) 5 4 700 m2 Rumah Rumah Mewah Luas Strategis Di Kawasan Simprug Golf, Jakarta SelatanSpek :Luas tanah 914 m2Luas bangunan 700 m2Bangunan 2 lantaiHadap TimurSHM/IMB/PBBKamar tidur 5 + 2Kamar mandi 4 + 2Taman depan belakangStudy roomDry & wet kitchenGarasi 2 mobil + Carport 4 mobilSwimming PoolHARGA : 79 M (Nego)Selling Point :Dekat Senayan CityDekat ke GBKDekat ke SudirmanMore Info :WA : 0812 9368 ----HP. : 0895 4177... Call
‹ › 1/13 Rumah dijual dengan 3 kamar tidur di Jatisampurna, Jawa Barat Bekasi, Jawa Barat RP 856,000,000 (RP 12,228,571 / m2) 3 2 70 m2 Rumah Rumah Cluster Baru Minimalis Modern Di Kawasan Kranggan Jatisampurna BekasiAvailable : 23 UnitRumah Indent : 5 BulanPromo Bulan Ini :* Cash Bertahap 6 bulan* Cash Keras dan KPR* Free Canopy* Free biaya BPHTB, AJB, BN* Free mesin air dan toren* Free smartdorlock Spesifikasi :- Luas Tanah : 57 - 65 m2- Luas Bangunan : 70 m2- Bangunan 2 Lantai- SHM/IMB Lengkap- Kamar Tidur : 3- Kamar Mandi : 2- Listrik... Call
‹ › 1/11 Rumah dijual dengan 6 kamar tidur di Balungbang Jaya, Jawa Barat Bogor, Jawa Barat RP 2.5 Milyar (RP 11,792,453 / m2) 6 4 212 m2 Rumah Rumah Bagus 2 Kavling Jadi 1 Siap Huni Strategis Di Metland CileungsiSpek :- LT. 429 m2 (209 + 220 m2)- LB. 212 m2 (102 + 110 m2) - Bangunan 1 Lantai- SHM + IMB- KT. 6- KM. 4- Listrik : 5500 W- Air : Jetpump- Harga : 2,5 M (Nego Tipis)- CASH/KPR (Proses Dibantu)Spek Bangunan :- Pondasi Cakar Ayam- Dinding Bata Merah- Genteng Keramik- Rangka Atap Baja Ringan- Kusen Kayu Kamper- Pintu Kayu Solid Merbau,... Call
‹ › 1/9 Rumah dijual dengan 4 kamar tidur di Kuningan Timur, Jakarta Jakarta Selatan, Jakarta RP 137.5 Milyar (RP 105,769,231 / m2) 4 4 1,300 m2 Rumah Car park Rumah Dijual dari 1,300sqm, yang terdiri dari 4 kamar tidur dan 4 kamar mandi berlokasi di Kuningan Timur, Jakarta Selatan. Fasilitasi meliputi: Car park. Call
‹ › 1/8 Rumah dijual dengan 4 kamar tidur di Jaka Mulya, Jawa Barat Bekasi, Jawa Barat RP 1.4 Milyar (RP 11,666,667 / m2) 4 3 120 m2 Rumah Rumah Sangat Strategis Cocok Untuk Usaha Di Jalan Raya Pengairan, Jalan Baru, Jakasetia, BekasiCOCOK UNTUK : KANTOR, CAFE, SALON, KLINIK, BIMBEL DLLSpek :- LT. 109 m2- LB. 120 m2 (2 Lantai)- Legalitas : SHM + IMB- Rumah Hadap TIMUR- KT. 4 + 1- KM. 3 + 1- Listrik 2200 W- Air Jetpump- Carport 2 Mobil- Harga : 1,4 M (Nego)- Cash/KPRSelling Point :- Lokasi pinggir jalan raya utama- Dekat kawasan bisnis... Call